Запчасти Volvo EW70 10742 Dipper arm cylinder EW70 TYPE 262

Схема запчастей Volvo EW70 - 10742 Dipper arm cylinder EW70 TYPE 262
FIT
1:1
100%

Артикул

Название

Примечание

Количество

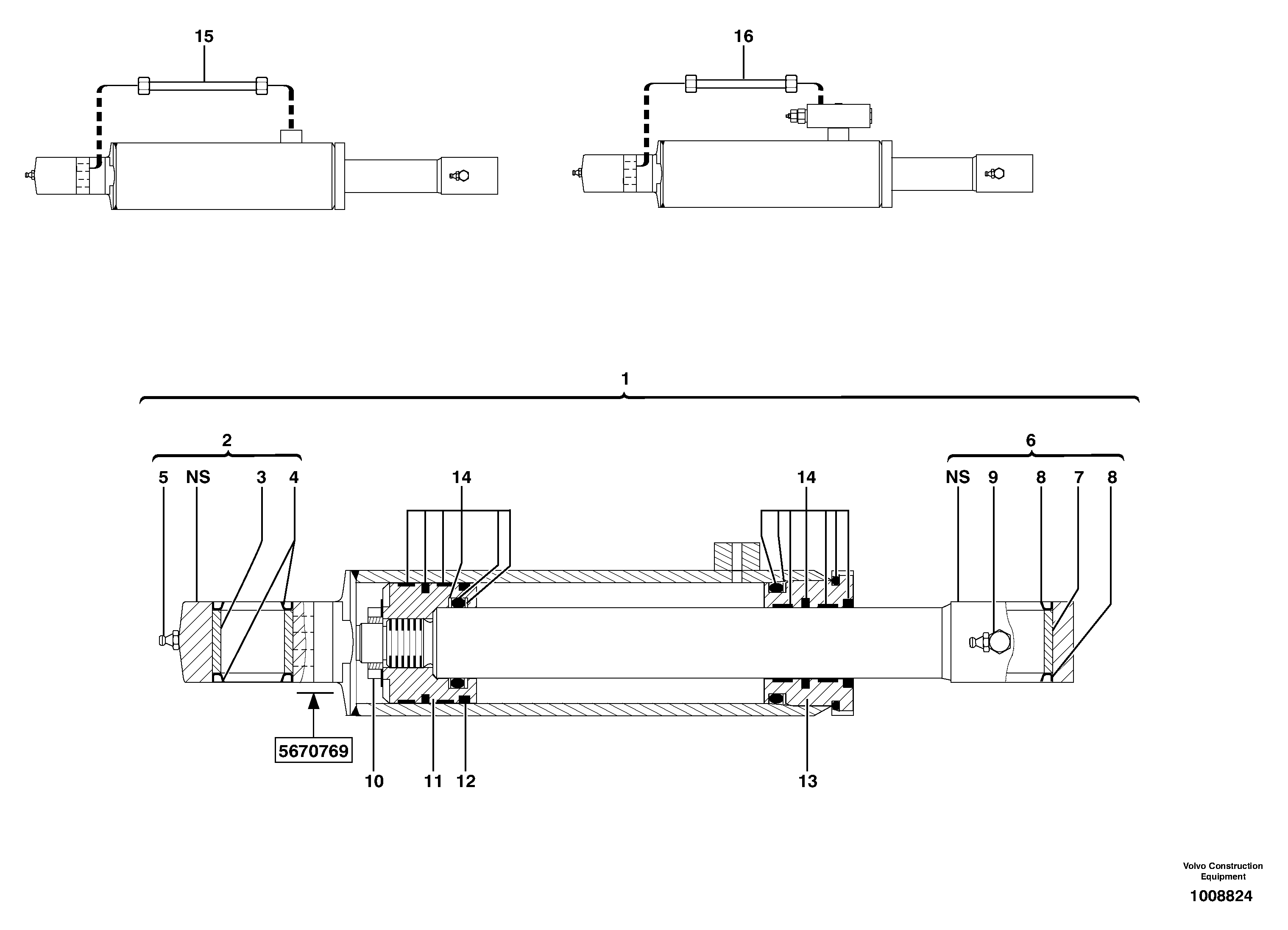
1

PJ 5670769

Dipper arm cyl

1шт.

10

PJ 5640216

Гайка

1шт.

11

PJ 5950134

Поршень

1шт.

12

PJ 5950135

Кольцо

1шт.

13

PJ 5950116

Сальник

1шт.

14

PJ 5960076

Sealing Kit

1шт.

15

PJ 5910595

Трубка

1шт.

16

PJ 5910813

Трубка

1шт.

2

PJ 5930182

Cylinder housing

1шт.

3

PJ 3870235

Втулка

1шт.

4

PJ 6140036

Сальник

1шт.

5

VOE 983718

Lubricating nipple

1шт.

5

VOE 983718

Lubricating nipple

1шт.

6

PJ 5940251

цилиндр

1шт.

7

PJ 3870235

Втулка

1шт.

8

PJ 6140036

Сальник

1шт.

9

VOE 983719

Lubricating nipple

1шт.

Выбрано товаров: 17