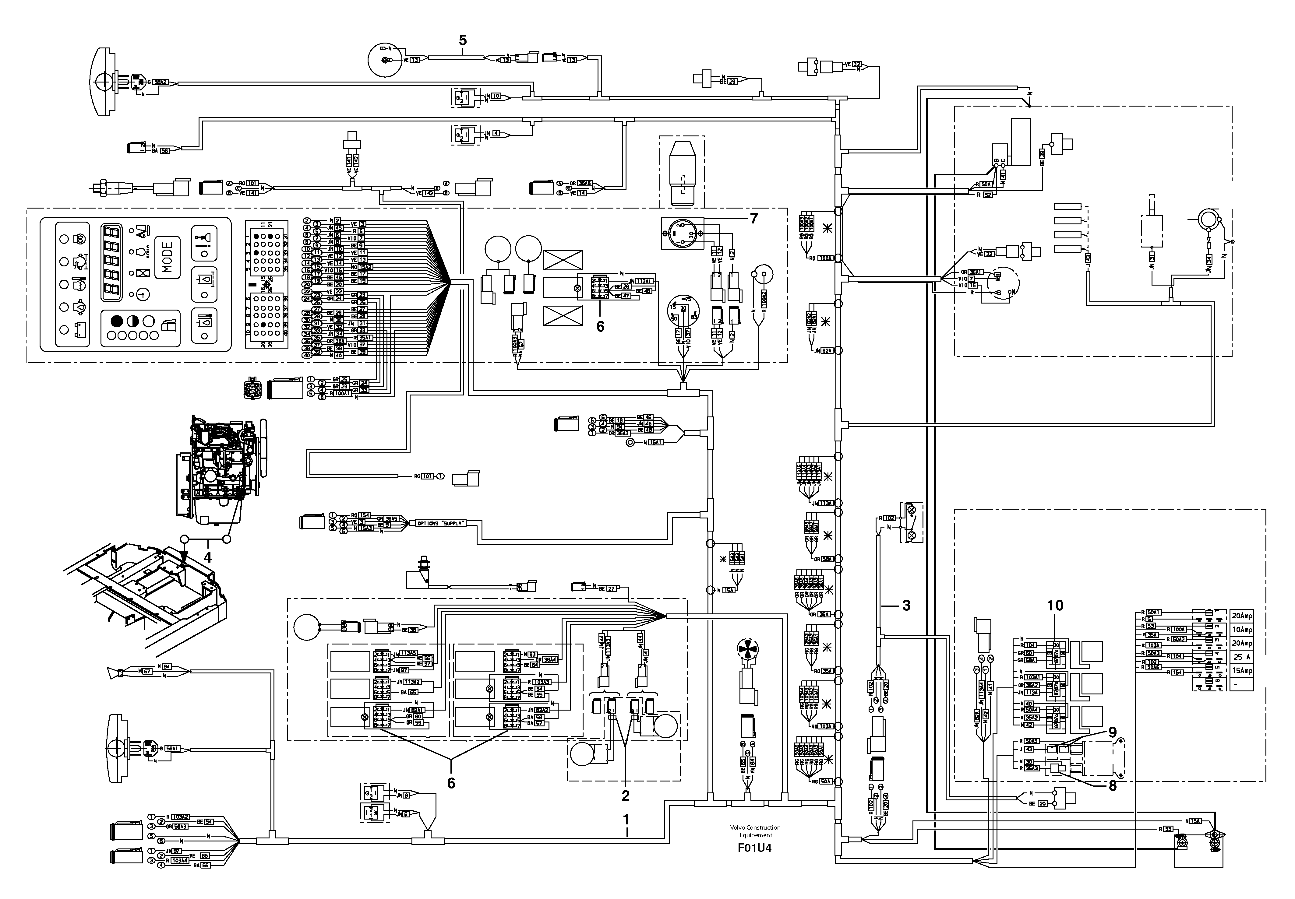
Запчасти Volvo EW70 45153 Electrical system / with Puma EW70VV TYPE 262

Схема запчастей Volvo EW70 - 45153 Electrical system / with Puma EW70VV TYPE 262
FIT
1:1
100%

Артикул

Название

Примечание

Количество

1

PJ 5720406

Wire harness

1шт.

10

PJ 5080042

Plug connector

1шт.

2

PJ 5720405

Wire harness

1шт.

3

PJ 5720347

Wire harness

1шт.

4

VOE 11805653

Battery cable

1шт.

5

PJ 5720346

Wire harness

1шт.

6

PJ 5080030

Plug connector

1шт.

7

PJ 5720305

Cable harness

1шт.

8

PJ 5080022

Plug connector

1шт.

9

PJ 5080021

Plug connector

1шт.

Выбрано товаров: 10