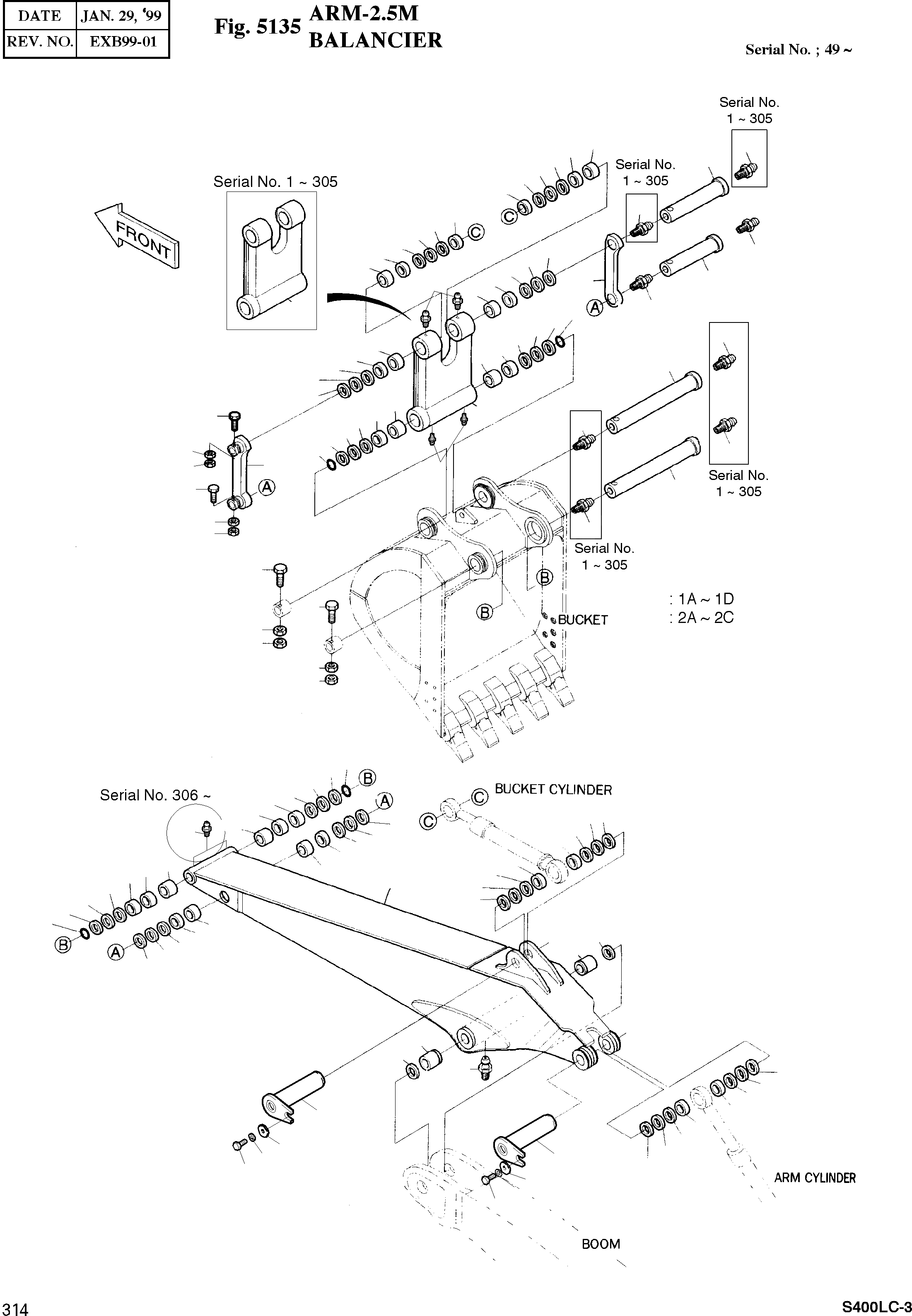
2110-1252 Втулка , Doosan
Наличие 2110-1252 на складах, цены и сроки отгрузки
Артикул
Название
Производитель
Код
Город отгрузки
Срок отгрузки
Наличие
Стоимость
2110-1252
Втулка 2110-1252, Doosan
138
Москва
2-3дня
21 шт.
2420 ₽
Показать больше
Информация, указанная на сайте, не является публичной офертой, носит справочно-информационный характер, может быть изменена в любое время без предварительного уведомления. Для получения актуальной информации о наличии, стоимости, сроков поставки товаров обращайтесь по адресу zakaz@partsell.ru
Заказать расчет, стоимость и сроки поставки 2110-1252
Применимость запчасти
Всего используется в 5 узлов, посмотреть полную применимостьПрименяется в спецтехнике
Варианты написания артикула
- 21101252
- 2110-1252
Похожие запчасти
- 2108-1028 Звездочка, 81EM-10013, 1181-00050, 81EM-10012, 81E5-2001, 108-00017, 2108-1028
- vp7620b4 Колесо натяжное, Hitachi ZX225-US-LC-3,Hitachi EX220-1,Hitachi EX200-1,Doosan S225-NL
- k76403d0m53600 Гусеница, Hitachi EX400LC-1,Hyundai R450LC-3A,Hyundai R500-LC-7,Hyundai R500-LC-7A,Hyundai
- 154-32-21321 Болт башмачный
- 440-00059a Гидроцилиндр ковша
- 81n8-11010 Каток опорный 81E5-2002
- 110-00241 Втулка Doosan 110-00241
- 2110-1394a Втулка в трапецию 2110-1394A (131004-00039A) Аналог (DOOSAN SOLAR
- 2110-1318a Втулка Solar 210,220,225,250 (2110-1318A), , шт
- 110-00084 Втулка Doosan 110-00084
- 4443885 Втулка боковая ZX330, ZX330-3
- ym123900-23600 YM123900-23600 Шатунный вкладыш (2 полувкладыша
- 4381857 Втулка ZX330 ZX330-3
- 207-70-73250 Втулка 207-70-32150
- 4409178 Втулка боковая ZХ-200, ZX200-3
- 17a-50-12310 Втулка, 17A-50-12310
- 4381855 Втулка боковая ZX330, ZX330-3
- 209-7456 Втулка 209-7456 (CGR
- 83910546 Втулка креп. стрелы к рукояти 83910546 (Аналог (New Holland
- 1208-0023 Втулка (аналог) 1208/0023